Артикул: 4171752Старый артикул: Стоимость: 4520 2486 руб. с НДССрок поставки: от 4-х до 6-ти недель
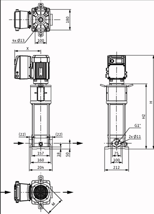
Масса нетто: 45,0 кг; Масса брутто: 59,0 кг; Габариты без учета упаковки, ДхШхВ: 204мм х 212мм х 870мм
Условия доставки см. в разделе: Оплата и доставка Отправить запрос |
Техническое описание:
Высокоэффективный высоконапорный центробежный насос вертикального исполнения с линейными подсоединениями и интегрированным частотным преобразователем с воздушным охлаждением. Интегрированный частотный преобразователь позволяет изменять переменное давление и регулировать частоту вращения.
Способы регулирования:
— Способ регулирования 1: ручное регулирование частоты вращения с помощью потенциометра
— Способ регулирования 2: Регулирование давления сигналом датчика 4 – 20 мА или 0 – 10 В, настройка заданного значения при помощи потенциометра или через внешний сигнал 0 – 10 В или 0 – 20 мА
— Способ регулирования 3: Регулирование частоты вращения через внешний сигнал 0 – 20 мА или 0 – 10 В
Электронный модуль с устойчивым к короткому замыканию выходом напряжения +24 В с макс. нагрузочной способностью контактов 30 мА. Модуль с беспотенциальными контактами для SSM, красные и зеленые светодиоды.
Подсоединение вала насоса и электродвигателя осуществляется посредством продольно-свертной муфты. Отдельный шарикоподшипник с фонарем обеспечивает оптимальное восприятие осевых сил. Специальные прочно смонтированные рым-болты облегчают установку насоса.
Насос подходит для использования в системах водоснабжения и повышения давления, в промышленных циркуляционных установках, а также в контурах очистки технологической воды и в закрытых контурах охлаждения. Кроме того, его можно применять в установках пожаротушения, моечных установках, а также для ирригации.
Особенности/преимущества продукции:
— Высокоэффективная гидравлическая часть 2D-/3D, сваренная лазером, с оптимизацией по КПД (с оптимизацией расхода и отвода газов)
— Коррозионно-стойкие рабочие колеса, ведущие колеса и ступенчатый корпус
— Гидравлическая часть с оптимизацией расхода и удаления газов
— Корпус насоса, оптимизированный по расходу и NPSH
— Конструкция, удобная для технического обслуживания
— Разрешение к применению в питьевом водоснабжении для всех деталей, контактирующих с перекачиваемой жидкостью (версия EPDM)
Комплект поставки:
— Высоконапорный центробежный насос Wilo-Helix VE
— Инструкция по монтажу и эксплуатации
— Исполнение PN 16 с овальными фланцами: Ответные фланцы из чугуна с соответствующими болтами, гайками и уплотнениями
Указания относительно типа:
— Helix VE серийно оснащена торцевым уплотнением.
— Для насосов в исполнении PN 16 и PN 25 можно заказать круглые ответные фланцы из серого чугуна или нержавеющей стали, болты, гайки и уплотнения в качестве принадлежностей.
— Датчики предлагаются в качестве дополнительных принадлежностей.
— Комплекты байпаса предлагаются в качестве дополнительных принадлежностей.
| См. подробное описание серии |
Эксплуатационные параметры:Максимальное рабочее давление: 16 bar |
Жидкость:Перекачиваемая жидкость: Вода или схожая по вязкости и плотности с водой жидкость, без твёрдых включений |
Материалы:Корпус насоса: 1.4301 [AISI304]
Рабочее колесо: 1.4307 [AISI304L]
Статическое уплотнение: EPDM |
Данные электрооборудования:Электромагнитная совместимость: EN 61000-6-1, -2, -3, -4 |
Монтаж:Патрубок на стороне всасывания: G 1 |
Другое:Вес, прим.: 40,2 kg Номер позиции: 4171752 |

