Артикул: 4087827Старый артикул: Стоимость: 1383 760,65 руб. с НДССрок поставки: от 4-х до 6-ти недель
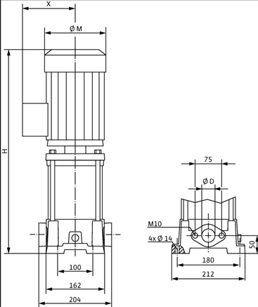
Масса нетто: 26,1 кг; Масса брутто: 28,1 кг; Габариты без учета упаковки, ДхШхВ: 204мм х 212мм х 592мм
Условия доставки см. в разделе: Оплата и доставка Отправить запрос |
Техническое описание:
Многоступенчатый нормальновсасывающий вертикальный высоконапорный центробежный насос линейного типа.
Данный насос имеет компактную конструкцию и оснащен сквозным насосным валом электродвигателя и не зависящим от направления вращения скользящим торцовым уплотнением. Секции, рабочие и ведущие колеса выполнены из нержавеющей стали. Корпус насоса выполнен из чугуна с катафорезным покрытием с подсоединениями под овальный фланец.
Насос подходит для водораспределения и повышения давления, промышленных циркуляционных систем, технологической воды, контуров циркуляции охлаждающей воды. Его также можно использовать в моечных установках, в системах орошения.
Особенности/преимущества продукции:
— Эргономичная, компактная блочная конструкция
Комплект поставки:
— Многоступенчатый высоконапорный центробежный насос Wilo-MVIL
— Инструкция по монтажу и эксплуатации
— Контрфланцы из серого чугуна и соответствующие винты, гайки и уплотнения
Указания по комановке:
— Реле электродвигателя для трехфазного электродвигателя предоставляется заказчиком
— Однофазный электродвигатель оснащен встроенной защитой электродвигателя от перегрева и конденсатором
| См. подробное описание серии |
Эксплуатационные параметры:Максимальное рабочее давление: 10 bar |
Жидкость:Перекачиваемая жидкость: Вода или схожая по вязкости и плотности с водой жидкость, без твёрдых включений |
Материалы:Корпус насоса: EN-GJL-250 (с катафорезным покрытием ) |
Данные электрооборудования:Подключение к сети: 1~230V/50 Hz |
Монтаж:Патрубок на стороне всасывания: Rp 1 |
Другое:Вес, прим.: 26,1 kg Номер позиции: 4087827 |

