Артикул: 4201117Стоимость: 2828 1555,4 руб. с НДССрок поставки: от 4-х до 6-ти недель
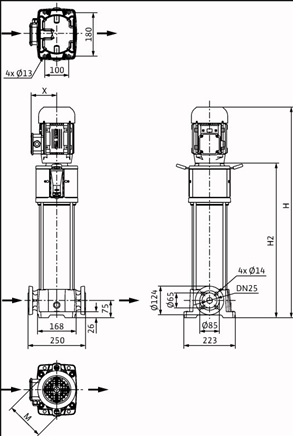
Масса нетто: 54,0 кг; Масса брутто: 74,0 кг; Габариты без учета упаковки, ДхШхВ: 250 х 212 х 1134
Условия доставки см. в разделе: Оплата и доставка Отправить запрос |
Техническое описание:
Высокоэффективный высоконапорный центробежный насос вертикального исполнения с линейными подсоединениями.
В целом, нормальновсасывающий высоконапорный центробежный насос отличается особо компактной конструкцией. Подсоединение вала насоса и вала стандартного электродвигателя IEC осуществляется посредством продольно-свертной муфты. Отдельный шарикоподшипник с фонарем обеспечивает оптимальное восприятие осевых сил.
Промежуточные подшипники гидравлической части и коррозионно-стойкий вал с втулкой из нержавеющей стали обеспечивают долгий срок службы.
На корпус насоса и фонарь нанесено катафорезное покрытие.
Специальные прочно смонтированные рым-болты облегчают установку насоса.
Насос подходит для использования в системах водоснабжения и повышения давления, в промышленных циркуляционных установках, а также в контурах очистки технологической воды и в закрытых контурах охлаждения. Кроме того, его можно применять в установках пожаротушения, моечных установках, а также для ирригации.
Особенности/преимущества продукции:
— Оптимизированная по КПД гидравлическая часть 2D/3D, изготовленная методом лазерной сварки
— Коррозионно-стойкие рабочие колеса, ведущие колеса и ступенчатый корпус
— Гидравлическая часть с оптимизацией расхода и удаления газов
— Укрепленный корпус насоса, оптимизированный по расходу и NPSH
— Экономия места и простое техобслуживание благодаря компактной конструкции
— Защитный кожух муфты повышенной прочности
Комплект поставки:
— Высоконапорный центробежный насос Wilo-Helix FIRST V
— Инструкция по монтажу и эксплуатации
— Исполнение PN 16 с овальными фланцами: Ответные фланцы из чугуна с соответствующими болтами, гайками и уплотнениями
Указания по типу:
— Защита электродвигателя — по запросу или предоставляется заказчиком.
— Стандартное положение клеммной коробки, выставленное на всасывающем фланце, можно при необходимости изменить.
— Wilo-Helix FIRST V оснащен удобным для пользователя торцевым уплотнением картриджного типа и серийным уплотнением для упрощения технического обслуживания
— Благодаря разборной муфте (при ≥ 7,5 кВт) можно заменять торцевое уплотнение без демонтажа электродвигателя
— Для исполнений PN 16, PN 25 и Pmax = 30 бар в качестве принадлежностей можно заказать круглые ответные фланцы из серого чугуна или нержавеющей стали, болты, гайки и уплотнения.
— Комплекты байпаса предлагаются в качестве дополнительных принадлежностей.
| См. подробное описание серии |
Эксплуатационные параметры:Максимальное рабочее давление: 30 bar |
Жидкость:Перекачиваемая жидкость: Вода или схожая по вязкости и плотности с водой жидкость |
Материалы:Корпус насоса: EN-GJL-250 (с катафорезным покрытием ) |
Данные электрооборудования:Подключение к сети: 3~400V/50 Hz |
Монтаж:Патрубок на стороне всасывания: DN 25 |
Другое:Вес, прим.: 57 kg |

